





Nearby Schools
PrescottElementary School
ParkroseMiddle School
ParkroseHigh School
Description
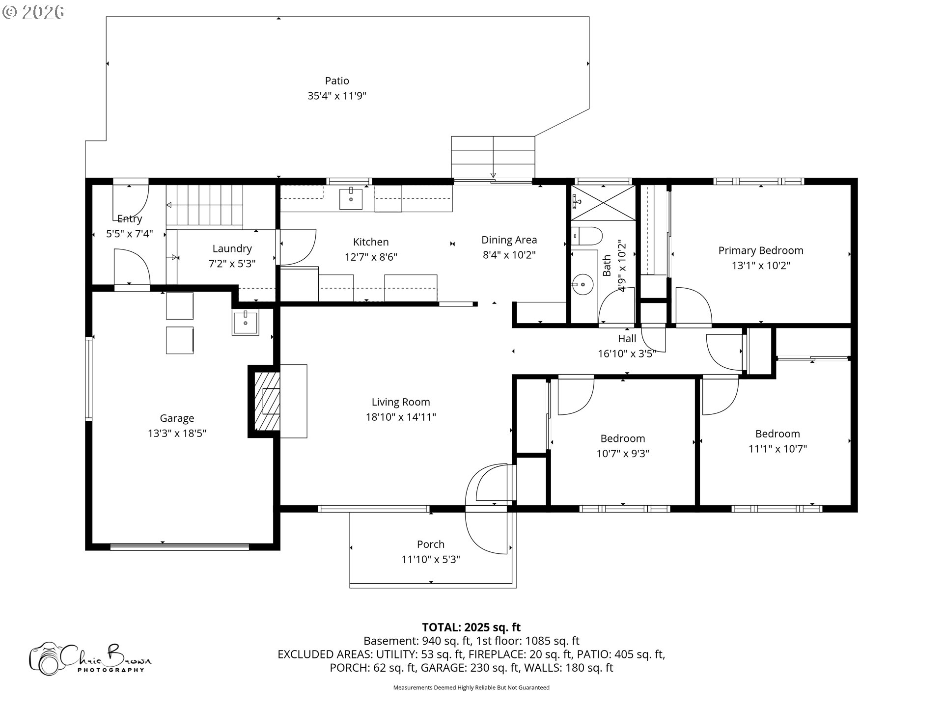
Discover the perfect blend of comfort, character, and value in this classic 1960 single-family home quietly tucked on a cul-de-sac in one of Northeast Portland's most affordable neighborhoods. Solid bones and restored hardwood floors set the tone, while a newly remodeled kitchen brings modern style and function to a home full of warmth. Cozy up to the gas fireplace upstairs on cool Portland evenings, or gather around the wood burning fireplace in the lower level for the ultimate retreat feel. The full basement impresses with two additional bonus rooms — non-conforming bedrooms ideal as a home office, den, guest space, or storage — giving you the flexibility to live and work exactly how you want. Step outside to a fully fenced, spacious backyard with mature landscaping — your own private sanctuary for gardening, relaxing, or entertaining on a summer evening. Ample natural light, an attached garage, and easy access to parks, local dining, and transit complete this rare package. Move-in ready with room to make it truly yours. [Home Energy Score = 4. HES Report at https://rpt.greenbuildingregistry.com/hes/OR10246709]
Location
Listed By
Similar Listings
MLS# 834462
CONTRACT
$549,900
3 Beds
2 Baths
Listing Office: PARAMOUNT REAL ESTATE SERVICES

MLS# 834362
CONTRACT
$450,000
3 Beds
3 Baths
Listing Office: REALTY ONE GROUP WILLAMETTE VALLEY

MLS# 834197
CONTRACT
$427,000
3 Beds
2 Baths
Listing Office: COLDWELL BANKER MOUNTAIN WEST REAL ESTATE, INC.

MLS# 838112
CONTRACT
$515,000
3 Beds
2 Baths
Listing Office: JMG JASON MITCHELL GROUP

No similar listings found
Unfortunately, we don't have any similar listings at the moment. Please remove or change some of the selected filters.

All information is deemed reliable but is not guaranteed and should be independently verified. The content relating to real estate for sale on this web site comes in part from the IDX program of the RMLS™ of Portland, Oregon. Real estate listings held by brokerage firms other than Capitol Real Estate are marked with the RMLS™ logo, and detailed information about these properties includes the names of the listing brokers. Some properties which appear for sale on this website may subsequently have sold or may no longer be available. Listing content is copyright © RMLS™, Portland, Oregon. Updated: 24th April, 2026 11:23 PM (UTC)













































































































